Чарівне місто

м. Киев. Дарницкийр-н, Бориспольская 18-26
587
12 січня 2023
ID 4173
від 33 500 грн за 1 м2
Побудують в: 2025 Метраж дома 400 000 м2

ЖК "Чарівне місто" это не просто это идеальное для людей которые устали от городской суеты  и в то же время привязаны к Киеву. 

ЖК расположился в самой зелёной части Дарницкого р-н, по близости с большим Парком Партизанской славы. Парк облагорожен и вы всегда сможете провести хорошо время всей семьей. Ведь он полюбился горожанам своей наполненностью.

Инфраструктура парка:

- Рестораны

- Самая большая канатная дорога в Киве

- Множество детских площадок

- 5 Спортивных зон

- Площадка для тренировок ваших любимцев

- До 10 км тропа здоровья по которой можно прокатиться на велосипедах или просто прогуляться наслаждаясь лесными красотами

- 3 озера в центре парка

- Множество зон для гриля

Но самое приятное, что прямо возле ЖК сделана конечная общественного транспорта:

- Маршрутки 

- Автобусы

- Станция метро "Красный Хутор"

Теперь вы всегда сможете быть первым и выбрать лучшие места!

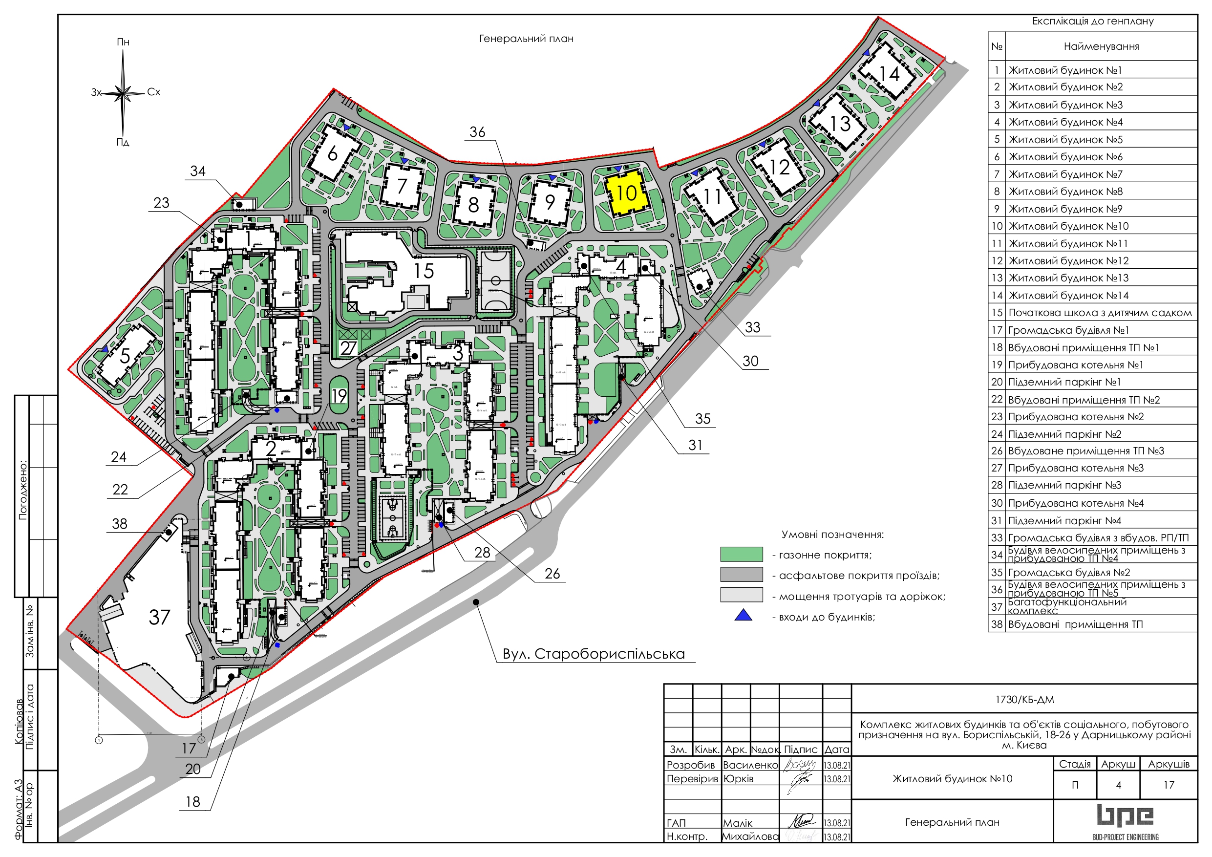
На территории ЖК планируют 13 домов по 27 этажей.

Учитывая то что дома не однотипны есть много вариантов планировок, а также панорамные виды на лесную сказку. Неважно предпочитаете вы запад или юг.

Дополнительное удобство:

- Подземный паркинг

- Отдельные помещения для хранения ваших вещей

В начале ЖК уже выделена зона для постройки ТРЦ в несколько этажей.

При наличии машины вы всегда можете доехать до Дурницкого рынка за 10 минут или завезти детей на дополнительные занятия в спортивный клуб "Восток" или множество ДК расположенных по близости. Автобусом займет до 20-ти минут.

Также на метро до центра можно добраться за пол часа и никаких пробок!

ЖК Чарівне місто это целый микро район со своей инфраструктурой и атмосферой.

Учитывая все перечисленные преимущества данного ЖК он отлично подойдет как для жизни, так и для инвестиций в будущее ваших детей или посевного дохода от аренды. Для любителей активного заработка все объекты КГС вырастают в цене в период строительства или при вводе в эксплуатацию от 50-200%.

КиевГорСтрой является самым крупным застройщиком Киева и Киевской области. Работает для вас с 1965 года. Качеством своей работы заслужил любовь Киевлян и гостей столицы.

Сейчас действует акция 5% на квартиры в данном ЖК + есть акции для военнослужащих.

Звоните, дадим качественную консультацию и подберем варианты для вас.

 

 

#

Киев , Бориспольская 18-26

Переваги будинку:

Вода
Лифт
Домофон
Консьерж

Інфраструктура

Супермаркет
5 мин
Остановка
5 мин пешком

Планування апартаментів

Видео объекта

Коментарі

Похожие новострой в м. Киев

Корисні статті

Дивитися усі
Важная новость
В Україні запустили новий сайт Ukrin.ua — сучасну платформу бізнес-івентів
# 07.04.26
# 39
Запущено Ukrin.ua — сучасну платформу для пошуку бізнес-івентів в Україні. Конференції, форуми, нетворкінг та події в одному місці.
Читать полностью
Чи вигідно інвестувати в Одеські новобудови ?
Будь-які інвестиції - це завжди певний ризик, але якщо підійти до справи з розумом, можна не втратити накопичення й отримати гарантований прибуток. В Україні другий за популярністю вид інвестування (п
Читать полностью
Де квадратний метр у новобудовах України коштує найдорожче?
# 22.01.25
# 550
Де в Україні квадратний метр у новобудовах коштує найдорожче? Київ, Закарпаття чи Львів? Ми дослідили ціни, тенденції та перспективи для тих, хто планує інвестувати в нерухомість. Відкрийте для себе а
Читать полностью